















Aceasta proprietate a fost deja vanduta! Pentru oferte similare contactati agentul
Apartament 3 camere bloc nou, Stupini
Brasov, Stupini
62.500€
Camere
3
Suprafata utila
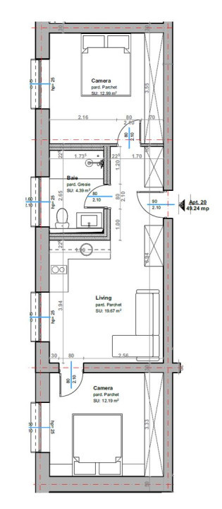
49.24 mp
Suprafata construita
59 mp
Etaj
Etaj 1
Bai
1
An constructie
2023
- ID:P10
- Nr. camere:3
- Nr. dormitoare:2
- S. utila:49.24 mp
- S. construita:59.00 mp
- Comp.:Semidecomandat
- Confort:1
- Etaj:Etaj 1
- Nr. bucatarii:1
- Nr. bai:1
- An constructie:2023
- Structura:Caramida
- Tip imobil:Bloc
- Regim inaltime:P+2
Descriere
Bucură-te de o locuință modernă, de liniște și aer curat în noul proiect Confort Living Stupini.
Ansamblul Rezidențial este format dintr-un bloc de locuințe intim și cochet, cu regim de înălțime mic ce cuprinde 30 de apartamente și locuri de parcare aferente.
Locuințele sunt amplasate în Stupini pe strada Fântânii, într-o zonă liniștită dar foarte bine conectată cu restul orașului, formată preponderent din case de locuit. Fie că vrei să folosești transportul în comun sau mașina proprie, locația îți permite să ajungi rapid în orice punct de interes al orașului chiar și la ore de vârf.
Clădirea are regim de înălțime Parter+Etaj+Mansardă și este realizată pe fundații din beton armat și zidărie din cărămidă.
Finisaje și dotări:
* Interioare: gresie, faianță, parchet, obiecte sanitare
* ușă metalica la intrare
* încălzire cu centrală termică proprie
* termoizolație exterioară cu polistiren
* geamuri termopan
Stadiu actual clădire: la roșu
Termen de predare: septembrie 2023
Apartamentul nr. 10
Tip apartament: 3 camere
Nivel: Etaj 1
Suprafață utilă: 49,24 mp
Preț: 62.500 euro, TVA 5 % inclus (preț valabil pentru plata integrală la contractare)
Opțional parcare 3.000 euro/loc
Modalitate de plată
- Varianta 1: integral la contractare
- Varianta 2: în tranșe pe diferite etape de execuție a imobilului până la finalizare.
Prețul afișat este valabil pentru plata integrală la contractare.
Citeste mai mult
Ansamblul Rezidențial este format dintr-un bloc de locuințe intim și cochet, cu regim de înălțime mic ce cuprinde 30 de apartamente și locuri de parcare aferente.
Locuințele sunt amplasate în Stupini pe strada Fântânii, într-o zonă liniștită dar foarte bine conectată cu restul orașului, formată preponderent din case de locuit. Fie că vrei să folosești transportul în comun sau mașina proprie, locația îți permite să ajungi rapid în orice punct de interes al orașului chiar și la ore de vârf.
Clădirea are regim de înălțime Parter+Etaj+Mansardă și este realizată pe fundații din beton armat și zidărie din cărămidă.
Finisaje și dotări:
* Interioare: gresie, faianță, parchet, obiecte sanitare
* ușă metalica la intrare
* încălzire cu centrală termică proprie
* termoizolație exterioară cu polistiren
* geamuri termopan
Stadiu actual clădire: la roșu
Termen de predare: septembrie 2023
Apartamentul nr. 10
Tip apartament: 3 camere
Nivel: Etaj 1
Suprafață utilă: 49,24 mp
Preț: 62.500 euro, TVA 5 % inclus (preț valabil pentru plata integrală la contractare)
Opțional parcare 3.000 euro/loc
Modalitate de plată
- Varianta 1: integral la contractare
- Varianta 2: în tranșe pe diferite etape de execuție a imobilului până la finalizare.
Prețul afișat este valabil pentru plata integrală la contractare.
Specificatii
Curent
Apa
Canalizare
Gaz
CATV
Centrala imobil
Incalzire pardoseala
Izolatie Exterior
Bloc izolat termic
Faianta
Parchet
Gresie
Ferestre PVC
Ferestre Termopan
Usa intrare Metal
Nemobilat
Alexandru Vacaru
0723072812
Esti interesat de aceasta proprietate ?